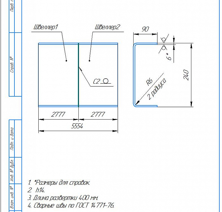
Гибка швеллера
12 марта 2020
// Гибка листового металла
Гибка швеллера 240*90*6 мм, длинной 2777 мм из давальческого материала заказчика.
Усилие гибки 116тонн.
Фотогалерея
В настройках компонента не выбран ни один тип комментариев
